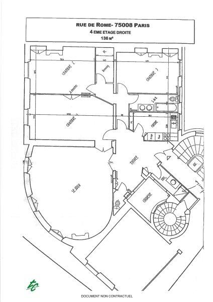
RUE DE ROME
Loyer : 4 120 €
Dont charges : 420 €
Dépôt de garantie : 3 700 €
Superficie : 137 m²
Pièces : 4
GRANDS MAGASINS - Bel appartement très clair
Dans un immeuble haussmannien de très bon standing, gardienné, à louer bel appartement de 4 pièces :
- 4e étage droite avec ascenseur : 137 m²
- Appartement en très bon état, très agréable
* 1 entrée
* 1 séjour en rotonde
* 3 chambres dont une avec dressing
* 1 salle de bain avec sanitaire
* 1 salle d'eau
* 1 cuisine aménagée séparée
* 1 sanitaire séparé
- Parquet, moulures
- Double vitrage
- 1 cave complète ce bien.
- 4e étage droite avec ascenseur : 137 m²
- Appartement en très bon état, très agréable
* 1 entrée
* 1 séjour en rotonde
* 3 chambres dont une avec dressing
* 1 salle de bain avec sanitaire
* 1 salle d'eau
* 1 cuisine aménagée séparée
* 1 sanitaire séparé
- Parquet, moulures
- Double vitrage
- 1 cave complète ce bien.